Kaiyun·体育(中国)官方网站-开云成就平凡梦想

kaiyun体育全站龙樾合玺售楼处-2024龙樾合玺房价-北京朝阳详情-开云Kaiyun·体育(中国)官方登录入口
专注【中高档】餐饮家具定制
当前位置: 主页 > 企业动态 > 企业新闻
kaiyun体育全站龙樾合玺售楼处-2024龙樾合玺房价-北京朝阳详情
来源: 网络 / 发布时间:2024-06-20 16:32:47 / 浏览次数:

  如有问题欢迎来电咨询,来电即可享受买房优惠!预约来电尊享购房优惠,可预约案场内部销售人员,专业一对一热情服务,让您用专业眼光去买房。

  龙樾合玺房价特价信息丨详细解答丨在售户型图丨项目介绍丨在售房源丨周边配套丨销售1V1讲解

  龙樾合玺项目位于望京崔各庄板块,新望京高端住宅区,距离阿里新总部所在的中关村朝阳园约3公里,到望京SOHO所在的核心区也是同样的距离。

  众所周知,望京率先享受两代发展红利,也成长为第二CBD,目前已接近饱和状态,未来的增长点将会在中关村朝阳园,而招商·龙樾合玺坐享两个板块的红利。

kaiyun体育全站龙樾合玺售楼处-2024龙樾合玺房价-北京朝阳详情(图1)

  在此基础上,龙樾合玺售楼处电话【官网】项目以精装修+高颜值+改善平层四居致敬区域发展,目前,项目已经开放实景样板区,公区、园林、大门、精装、地块等,全部所见即所得,也是区域内销量最好的项目之一。

  可以看到龙樾合玺售楼处电话【官网】项目大胆的将一条完整归家动线上所有的细节,用实景示范区的方式,大大方方的展示给所有买房人。尤其是社区入口,香槟金+曲线+玻璃幕墙的造型组合,不仔细分辨以为走到了某五星级酒店的门口。

  项目主打科技住宅,采用了德国进口的塑钢窗和香槟金色铝板。据说,塑钢窗的保温隔热性能更好。

  采用点式建筑,即建筑之间密度较低,不仅使得阳光穿透性强,加长园林与室内空间的采光时间,而且实现多角度园林观景。

  值得一提的是,室内采用了松下六恒系统:即新风、空调、调湿三大模块营造六恒环境。室内静音系统采用同排+隔音垫+电梯双墙。

  室内配置也都是国际一线品牌,德系居多,如嘉格纳、唯宝、高仪、汉斯格雅等。

  龙樾合玺售楼处电话【官网】项目地上建面约8.5万平,其中公租房建面2.86万平,容积率2.5,建筑最高高度53.85米,销售限价8.8万/㎡,有套内7090限制。

kaiyun体育全站龙樾合玺售楼处-2024龙樾合玺房价-北京朝阳详情(图2)

  龙樾合玺售楼处电话【官网】项目项目共计规划15栋楼,10栋商品房,户型为125㎡三/四居、155㎡四居、160㎡四居、175㎡四居,其中123㎡为主力户型,产品以中高端改善为主,共426套。

  东北角还有5栋公租房,户型面积为93㎡--123㎡的两居、三居产品。用一个景观带进行了软隔离处理。

kaiyun体育全站龙樾合玺售楼处-2024龙樾合玺房价-北京朝阳详情(图3)

kaiyun体育全站龙樾合玺售楼处-2024龙樾合玺房价-北京朝阳详情(图4)

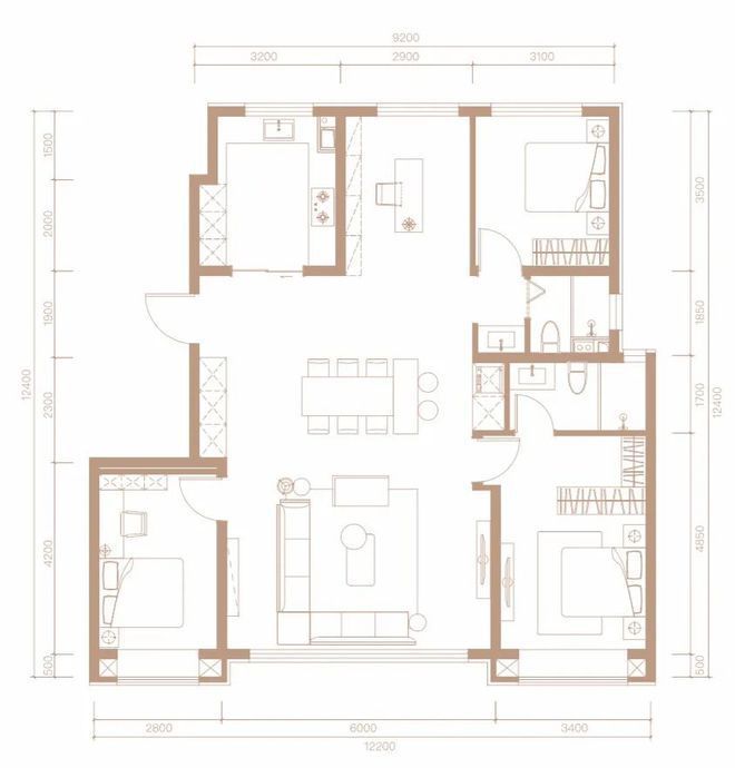
  建面约125㎡的四居两卫,经典的LDK+X格局,“四叶草”的布局,南向三面宽,设置了一个主卧套房和一个次卧,北向一个次卧和一个书房。北侧的X空间是亮点,可以作为第二会客区,也可以作为书房,甚至和旁边的次卧打通变成大套房。

kaiyun体育全站龙樾合玺售楼处-2024龙樾合玺房价-北京朝阳详情(图5)

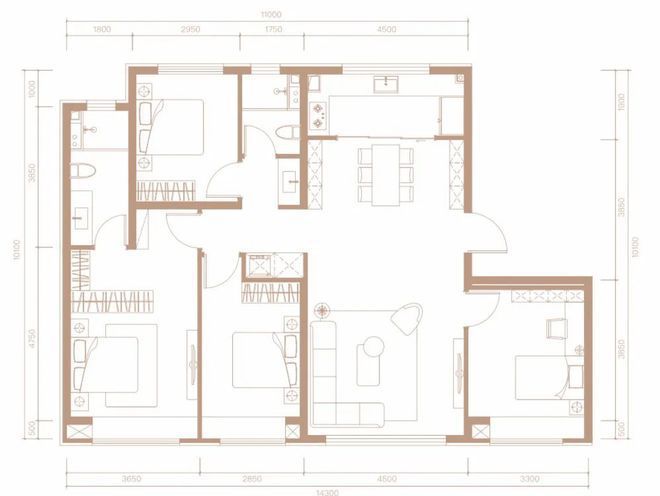
  155㎡的四居两卫,各空间的尺度更大一些。书房面积约为10.15㎡,可做书房,也可做卧室。

  此外,客厅面宽做到6m,餐客厅整体进深做到6.5m,形成了一个奢阔的餐客一体化空间,有利于家庭日常的交流、互动和亲朋聚会。

kaiyun体育全站龙樾合玺售楼处-2024龙樾合玺房价-北京朝阳详情(图6)

  LDK一体化设计,因为进深拉长后,规避掉了入户看到餐桌的问题。4.5米面宽厨房,步入式衣帽区,双明卫三分离,人性化设计通透惬意。

kaiyun体育全站龙樾合玺售楼处-2024龙樾合玺房价-北京朝阳详情(图7)

  建面约175㎡四居两卫典型的“四叶草”布局,四个卧室在四个角,互不干扰。

  主卧套房做了270°转角窗,奢适感全面提升。LDK一体化设计,客厅面宽做到了6.2米,餐客厅面积做到53.94㎡,这会是让高改客群最眼前一亮的一个空间。

  如有问题欢迎来电咨询,来电即可享受买房优惠!预约来电尊享购房优惠,可预约案场内部销售人员,专业一对一热情服务,让您用专业眼光去买房。

  kaiyun官方登录入口 开云体育平台

  龙樾合玺房价特价信息丨详细解答丨在售户型图丨项目介绍丨在售房源丨周边配套丨销售1V1讲解