Kaiyun·体育(中国)官方网站-开云成就平凡梦想

86平现代简约装修简约而不冷清惬意的简单生活!-开云Kaiyun·体育(中国)官方登录入口
专注【中高档】餐饮家具定制
当前位置: 主页 > 企业动态 > 媒体报道
86平现代简约装修简约而不冷清惬意的简单生活!
来源: 网络 / 发布时间:2024-11-30 13:48:16 / 浏览次数:

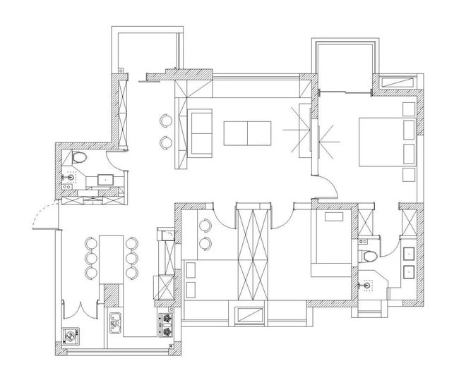
  这套135㎡的房子装修得井井有条,开放式格局空间宽敞又舒适,让人心生羡慕!

86平现代简约装修简约而不冷清惬意的简单生活!(图1)

  入户进门,原本过道一侧的卫生间门变成了定制鞋柜,整面墙设计储物空间够大。组合式鞋柜设计很巧妙,换鞋凳、挂衣区、收纳结合,提高入户舒适性及实用性。原木色的柜体与大白墙结合,简单自然。

86平现代简约装修简约而不冷清惬意的简单生活!(图2)

  客厅简洁宽敞,温润舒适。卡座设计实用极了,不仅增加收纳空间,还与沙发形成合围,日常休闲会客两不误。餐厅移至入户区域,客厅空间得以释放,开间扩至4.6m,充分享受整个窗户采光。顶面采用无主灯设计,分散中心光源,让照明更均匀不刺眼。

86平现代简约装修简约而不冷清惬意的简单生活!(图3)

  餐厅移至入户区域,空间通透采光好。隔断设计将原有的阳台空间一分为二,一部分纳入厨房,一部分作为生活阳台,分区合理便于收纳。地板与六边形地砖无缝拼接,延伸至隔断墙花砖,丰富空间避免单调。

86平现代简约装修简约而不冷清惬意的简单生活!(图4)

  厨房通风和采光都得很好,U型布局动线合理,水泥灰墙砖搭配原木橱柜,干净利落质感十足。高低台面设计,符合人体工程学,实用性更高。

86平现代简约装修简约而不冷清惬意的简单生活!(图5)

  主卧室温馨舒适,运用色彩差来丰富空间层次感,让背景墙更加突出。装饰画和灯具的点缀,让空间不显沉闷。顶面隐藏式照明设计,见光不见灯,不仅整体美观,还能营造慵懒的氛围。

86平现代简约装修简约而不冷清惬意的简单生活!(图6)

  主卧室阳台,面积不是很大,摆放一把摇椅恰到好处,冬日里沐浴阳光享受温暖。

86平现代简约装修简约而不冷清惬意的简单生活!(图7)

  儿童房暂未布置家具,小朋友还小暂时充当玩具房。照明设计和多功能房一致,见光不见灯美观漂亮。光线均匀也不刺眼,很适合小朋友。

86平现代简约装修简约而不冷清惬意的简单生活!(图8)

  次卧是最小的房间,设计成多功能房。榻榻米设计提高空间利,增加收纳满足实际需求。自然的原木色,搭配清新的薄荷绿,静谧中有点精灵般的俏皮,让整个空间更加和谐温暖。

86平现代简约装修简约而不冷清惬意的简单生活!(图9)

  卫生间没有通风和自然采光,所以设计上大面积使用白色,提高空间明亮。同时放弃淋浴房隔断,采用比较灵活的浴帘,减少空间拥挤感。

86平现代简约装修简约而不冷清惬意的简单生活!(图10)

  特别声明:以上内容(如有图片或视频亦包括在内)为自媒体平台“网易号”用户上传并发布,本平台仅提供信息存储服务。

  太气愤!浙大一院刘磊医生因伤去世,年仅45岁,好友透露线万元抄底后,撞上5倍大牛行情!减持太快出问题,吐出13.8万元盈利!夫妻二人“深刻反省”,剩余股票仍浮盈340万元

  kaiyun体育全站 官网登录

  刘汉元:中国已经完全具备条件,用20年左右的时间,基本实现对每年5亿吨进口原油的全部替代(全文)

  某红书女博主参加名媛培训班可以去联合国演讲?看清背后套路丢人丢到国际化!

  员工与领导互骂被开除!互打官司!法院:仅处理员工,不处理领导不公平,公司赔84万!

  湾区黄金枢纽之上,有灵魂与底蕴的「世界庄园」广佛新世界,打版第四代高质量住宅!

  澎湃OS2.0再次发力:小米15系列、红米K80系列,均有新版本来袭!

  kaiyun体育全站 官网登录

  OPPO与一加齐发力:Find X8 Ultra、一加S系列、新系统推送都来了

  微星Claw 8、Claw 7 AI+掌机终于发布!首发酷睿Ultra 200V、32GB大内存

  雷神 Shark 台式机新增“Ultra 7 265K + 4070S”首销,15699 元