Kaiyun·体育(中国)官方网站-开云成就平凡梦想

北京庄园(售楼处)-2024首页丨顺义北京庄园欢迎您丨最新价格地址-开云Kaiyun·体育(中国)官方登录入口
专注【中高档】餐饮家具定制
当前位置: 主页 > 企业动态 > 媒体报道
北京庄园(售楼处)-2024首页丨顺义北京庄园欢迎您丨最新价格地址
来源: 网络 / 发布时间:2024-06-19 17:46:01 / 浏览次数:

  价特价信息丨详细解答丨优惠政策丨在售户型图丨项目介绍丨在售房源丨周边配套丨VR看房丨楼盘图丨沙盘图丨位置图丨配套图丨售楼处地址丨足不出户丨销售1V1讲解

北京庄园(售楼处)-2024首页丨顺义北京庄园欢迎您丨最新价格地址(图1)

  北京庄园售楼处电话:【营销中心】,项目遵循“为别墅阅历丰富者而生”的品牌理念,为中国家族打造千米纯独墅。在项目整体打造上,董事长亲率团队,历时5年,从全球庄园、奢华酒店中汲取灵感,成就大师级珍藏别墅作品。

  同级别、同纯度的顶豪别墅聚落,为同质业主打造专属社交圈。单栋使用面积达到1000㎡以上,仅百余栋楼王作品,只为中国财富家族收藏。

  在空间营造上,以“黄金三法则”划分,无论是空间比例、细节打磨、风格镌刻,都实现独墅价值化。在功能配置上,设有五星级私家影厅、酒庄级私藏酒窖、4-8停车位配有加长车位的非毛坯车库。不仅如此,项目更将25米国际泳联标准短道泳池做进室内,极大地增强了别墅空间使用功能。

  百年家族品牌,只为庄园定制。作为北京首创的满配非毛坯别墅,北京庄园不惜重金,全部建材原产地采购,由欧洲世家工匠筑造纯正的法意别墅。

北京庄园(售楼处)-2024首页丨顺义北京庄园欢迎您丨最新价格地址(图2)

  北京庄园售楼处电话:【营销中心】,北京庄园毗邻京承高速11出口,据南石槽行宫旧址而建,总体规划为200余栋满配精装独栋别墅。常年交通畅行,快速通达望京、国贸等东部核心商圈。

  kaiyun官方登录入口 开云体育平台

  开云体育 网页版入口

北京庄园(售楼处)-2024首页丨顺义北京庄园欢迎您丨最新价格地址(图3)

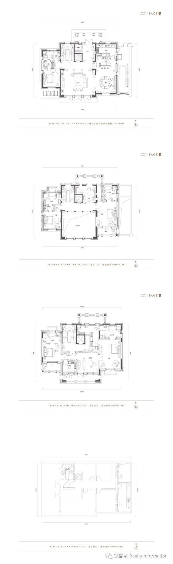
  楼栋总高:5层(地上3层地下2层)意式户型无阁楼赠送,法式户型赠送阁楼150平左右

  楼层高度:首层3.8米、地上二层3.5米、地上三层3.6米、阁楼2.75米、(F1层3.6米、F2层4米)

北京庄园(售楼处)-2024首页丨顺义北京庄园欢迎您丨最新价格地址(图4)

北京庄园(售楼处)-2024首页丨顺义北京庄园欢迎您丨最新价格地址(图5)

  北京庄园售楼处电话:【营销中心】,在北京庄园,优雅和极致被物化到每一个细节之中,除了满满的诚意,还有传承的力量与温度,这也是其与市场上其他产品最大不同所在。

北京庄园(售楼处)-2024首页丨顺义北京庄园欢迎您丨最新价格地址(图6)

  为了打造这样一座传世庄园,北京庄园董事长沉淀数十年的别墅居住经验,亲自率领研发团队,历经9年,足迹遍布全球,不惜成本、不惜代价,将全球最优质的选材和审美元素都纳入了庄园主人的日常生活,由此将中国豪宅推向世界顶级水准。

  其室内石材,选用意大利卡拉拉山脉的特级品质的鱼肚白,与米开罗基罗的《大卫》雕塑属于同一石材,市场资源极为稀缺,每平米造价可达2万元/平米,成本是市面中普通石材的十几倍。

北京庄园(售楼处)-2024首页丨顺义北京庄园欢迎您丨最新价格地址(图7)

  即便是园区地面上铺设的小料石,也是进口自意大利,如此营造手法,目前在北京尚属唯一。

北京庄园(售楼处)-2024首页丨顺义北京庄园欢迎您丨最新价格地址(图8)

北京庄园(售楼处)-2024首页丨顺义北京庄园欢迎您丨最新价格地址(图9)

  作为全世界最高端的法式家具品牌,Pozzoli的每一款都是收藏品,即使是欧洲的富豪也只能在重要空间少量购置Pozzoli的产品。

北京庄园(售楼处)-2024首页丨顺义北京庄园欢迎您丨最新价格地址(图10)

  北京庄园为了呈现一致性,通过深度沟通实现了Pozzoli的专项定制合作,根据北京庄园的空间尺度量身定制家具,让每款家具都成为世界上独一无二的藏品。

北京庄园(售楼处)-2024首页丨顺义北京庄园欢迎您丨最新价格地址(图11)

北京庄园(售楼处)-2024首页丨顺义北京庄园欢迎您丨最新价格地址(图12)

  同时,北京庄园的所有精装配置,无论是橱柜、灯具、地毯,还是大门、门窗、栏杆,均为世界TOP级别,每件物品都师出有名,可追根溯源。

北京庄园(售楼处)-2024首页丨顺义北京庄园欢迎您丨最新价格地址(图13)

  值得一提的是,与一般顶豪用的工业化的流水线产品不同,北京庄园里的大部分工艺都是匠人用巧手打磨而成。

北京庄园(售楼处)-2024首页丨顺义北京庄园欢迎您丨最新价格地址(图14)

  譬如,室内大面积木作采用手扫漆工艺,这种工艺传承自法国的凡尔赛宫;入户大门由技艺纯熟的匠人纯手工锻造,表面金色的部分为24K金箔贴金工艺,中间为防弹玻璃;

北京庄园(售楼处)-2024首页丨顺义北京庄园欢迎您丨最新价格地址(图15)

北京庄园(售楼处)-2024首页丨顺义北京庄园欢迎您丨最新价格地址(图16)

  主卧木作上的金箔,使用纯度为99.9%的金箔进行贴金工艺,每个熟练工匠每天大概能做5米左右……

  书房,台球室,接待室,健身房,影音室等等独栋别墅的标配功能空间当然是应有尽有。

北京庄园(售楼处)-2024首页丨顺义北京庄园欢迎您丨最新价格地址(图17)

  除此之外,户户标配25米标准私家泳池,配恒温设计、自动过滤系统。它的私家泳池——国内唯一 25 米长的国际短道标准泳池,泳池选用世界最顶级的马赛克品牌——SICIS。

北京庄园(售楼处)-2024首页丨顺义北京庄园欢迎您丨最新价格地址(图18)

  泳池墙面上的浮雕是由 4 名法国 novidis 公司匠人历时半个月完成,精湛工艺使壁画栩栩如生,仿佛置身于 1756 年凡尔赛宫的后花园,无比绚丽而夺目。

  泳池旁边还有专门的泡池,按摩室,SPA室,甚至还设置了理发室。只有真正居住在别墅中的人,才能给出这样贴心的设计,关怀到别墅生活的每一个细节之处。

北京庄园(售楼处)-2024首页丨顺义北京庄园欢迎您丨最新价格地址(图19)

  北京庄园奢装满配独栋别墅,主力面积区间约1200-3300㎡,筑就中国家族世代传承的终极居所!北京庄园的诞生,定义了全球豪宅新标准!

  ✧比邻京承高速出口,快速抵达三环,四环,轻松掌控社交圈/生意圈/生活圈,如此矜贵土地再难复制

北京庄园(售楼处)-2024首页丨顺义北京庄园欢迎您丨最新价格地址(图20)

北京庄园(售楼处)-2024首页丨顺义北京庄园欢迎您丨最新价格地址(图21)

  ✧北京唯一别墅首层高度约5米,二层约4.5米,双层挑空高度超9.5米,带来全方位的奢阔之感

北京庄园(售楼处)-2024首页丨顺义北京庄园欢迎您丨最新价格地址(图22)

北京庄园(售楼处)-2024首页丨顺义北京庄园欢迎您丨最新价格地址(图23)

  ✧法式泰斗级设计大师PYR、国际建筑设计巨匠罗伯特·斯特恩等世界大师联袂设计,缔造中国唯一的无憾之作

  ✧在木作/家具/石材/灯等多个维度,实现三次高定升级,呈现举世无双的艺术珍品

北京庄园(售楼处)-2024首页丨顺义北京庄园欢迎您丨最新价格地址(图24)

北京庄园(售楼处)-2024首页丨顺义北京庄园欢迎您丨最新价格地址(图25)

  ✧建筑设计兼顾室内布局,5*7米卧室黄金比例,卧室全套房设计南北通透,双面采光,兼顾东窗与西窗设计,实现极致通透与最佳舒适度

北京庄园(售楼处)-2024首页丨顺义北京庄园欢迎您丨最新价格地址(图26)

  ✧每层可配置独立的客厅/餐厅/厨房/起居厅及卧室,多代人既合并共居,又互不干扰

北京庄园(售楼处)-2024首页丨顺义北京庄园欢迎您丨最新价格地址(图27)

  ✧整合顶富阶层所需的稀缺生活资源,新荣记/文华东方SPA/BHG、OLE进口超市等顶级配套

  国家一级资质物业管理公司、物业服务百强企业晟邦物业,依托源自法国巴黎的金钥匙组织,为庄园业主提供全球顶级尊崇服务

北京庄园(售楼处)-2024首页丨顺义北京庄园欢迎您丨最新价格地址(图28)

  自中国最美高速——京承高速11出口驶出1000米即达。京密路将按城市快速路标准升级进行改造,大幅改善交通环境,提高出行效率。此外,机场北线高速、天北路等多条道路,为项目搭建起四通八达的交通网络,出行体验快速、便捷。

  会所:自有两大会所:养心会所、高端商务休闲会所区域路网升级,维多利亚湖、海德公园、庄园会所

  购物:迪卡农、新世界、隆华、凯德茂、六佰本商业街等及项目自有4000平米私享洲际会所欧陆广场、荣祥广场、赛特奥特莱斯、日祥广场等。金色河畔高尔夫球会、乡村高尔夫俱乐部、香江高尔夫球中心、月河湾马术俱乐部、格林马术培训中心。

  园林:约20万平海德公园、约2.2万平活水湖、奥林匹克水上公园、燕山南麓负氧离子含量约20000个/立方厘米、纯净的天然氧吧维多利亚湖,牤牛河、温榆河,一湖两河相伴。金色河畔高尔夫球会、乡村高尔夫俱乐部、高尔夫球中心、月河湾马术俱乐部、格林马术培训中心、乡村赛马场等。

  蟒山国家森林公园、大杨山国家森林公园、书画山森林公园,雁栖湖、古北水镇、密云水库、怀柔度假区。

  周边医院:北医三院分院、北京市望京医院、顺义区医院、顺义区第二医院、顺义区第三医院、空港医院及和睦家医院等。

  周边学校:北京国际学校(ISB)、力迈、蒙特梭利、伊顿、京西学校、瑞典、英国、海嘉等国际学校。

北京庄园(售楼处)-2024首页丨顺义北京庄园欢迎您丨最新价格地址(图1)

  1、目前北京唯一在售低容积率全新纯独栋法式、意式别墅,也是北京最后一个全新独栋别墅项目,为稀缺绝版资源,未来即将断供;

  2、告别前二后三的花园设计,将花园真正回归到首层,确保每户花园的日照时间,户户北入户南花园,使用方方正正,单套花园300㎡至1200㎡;

  3、户型设计以短进深大面宽格局(14-18㎡)且能保证居室间间做到南北通透;

  4、董事长为董事长设计理念,带领百人研发团队历时5年时间,足迹遍布全球,匠心打造了全国唯一满配精装修的独栋别墅项目,一个无装修烦恼,真正意义上纯别墅居住理念;

  5、北京庄园将打造全国最顶级的富豪圈层,圈层统一、业主都是拥有同样生活阅历和财富积累的人,项目配备1880平米私属会所,为业主提供(定制私宴中、西、法餐、设红酒吧、雪茄吧、精品超市、书吧、咖啡厅、sap室、休闲娱乐区);

  6、每一栋别墅都是居所+会所的设计理念,地上三层为居住空间(动静分区),地下两层为娱乐休闲空间,每一栋房子均配置标准长25米的国标泳池,同时设:影音室、健身房、台球吧、雪茄吧、红酒吧,彰显业主尊贵身份;

  7、北京庄园专为董事长而设计,匠心打造全国豪宅市场最顶尖产品,强强联合全球60余家传承家族联合,定制不一样的庄园,提供给未来业主奢华生活。

北京庄园(售楼处)-2024首页丨顺义北京庄园欢迎您丨最新价格地址(图30)

  北京庄园售楼处电话:【营销中心】,项目所在的赵全营板块,作为北京城市总体规划布局的重点发展区域,也是中央别墅区延伸晋级的高端板块,可以享受中央别墅区、奥北别墅区以及望京商圈内所有配套,拥有北京低密专区的高品质价值

  项目精装满配交付,可定制装修,全部为北向入户,南花园,花园在地上,花园精装交付,大面宽、短进深,大大提高了日照时间。

  40年专注沉淀,七年精心打造,呈现世界级的庄园大宅,满配现房,打造独一无二的奢侈品家居,造价200万的水晶吊灯,30万的法国订制地毯,对于房子来说,都是浮云!科技住宅也只是标配,之所以是世界级,这里带您欣赏永恒的配置观感。

北京庄园(售楼处)-2024首页丨顺义北京庄园欢迎您丨最新价格地址(图31)

  北京庄园房价特价信息丨详细解答丨优惠政策丨在售户型图丨项目介绍丨在售房源丨周边配套丨VR看房丨楼盘图丨沙盘图丨位置图丨配套图丨售楼处地址丨足不出户丨销售1V1讲解