Kaiyun·体育(中国)官方网站-开云成就平凡梦想

「御璟星城元启」售楼处-2024北京「御璟星城元启」房价-楼盘详情-开云Kaiyun·体育(中国)官方登录入口
专注【中高档】餐饮家具定制
当前位置: 主页 > 企业动态 > 媒体报道
「御璟星城元启」售楼处-2024北京「御璟星城元启」房价-楼盘详情
来源: 网络 / 发布时间:2024-07-19 10:56:29 / 浏览次数:

  如有问题欢迎来电咨询,可预约销售人员,专业一对一热情服务,让您用专业眼光去买房。

「御璟星城元启」售楼处-2024北京「御璟星城元启」房价-楼盘详情(图1)

  大兴西红门东板块属于新盘聚集,未来空地还有六块,因此这里算是写的最多的板块区域,板块、配置分析看过往的文章就足够了。这里主要聊一下新盘--中建御璟星城-元启(中建壹品前几天的花香壹号降价潮,降价没成功,但是也漏了中建壹品的底了--急需要回款。花香壹号的底价也打出来了--买这里的人就更不着急了)。

「御璟星城元启」售楼处-2024北京「御璟星城元启」房价-楼盘详情(图2)

  2024年2月22日,大兴区西红门镇DX04-0102-6035地块(二类居住用地,土地面积约4.7万平方米,建筑控制规模约11.76万平方米,容积率2.5、控高45米,起始价42.4亿元。竞得人需建设邮政所一处,由邮政部门以建安成本价接收,并建设公共厕所一处,无偿移交相关部门)。

  拍地规则:(土地合理上限价格48.76亿元,当竞买报价达到土地合理上限价格时,则不再接受更高报价,转为现场摇号方式确定竞得人,参与现场摇号的竞买人须提交《高标准住宅建设承诺书》)。

  一共9家公司报名(中建三局、建发、兴创、铁建、中铁、住总、中海、华润、方兴亦城(金茂)),网上竞价阶段收获9轮报价。现场竞价阶段,经过18轮出价触达价格上限。中建三局、兴创、铁建、中铁、住总5家房企进入摇号程序。

  最终:中建壹品以48.76亿元总价摇中大兴西红门地块,住宅楼面价为4.15万元/平方米,溢价率15%。销售指导价6.6万元/平方米,上下浮动8%。

  这个也是中建壹品拿下在大兴的第7宗地块,案名定为壹品兴创·御璟星城·元启。

  ①、2022年2月,中建壹品+兴创联合体以35.7亿元底价竞得大兴区西红门镇地块,建筑规模21.1万平方米--后来的御璟星城;

  ②、2022年6月,中建壹品与联投置业联合体以48.2亿元收购北京市大兴区黄村镇DX00-0202-6007、6014、6011、6002地块(R2二类居住用地、F3其他类多功能用地、A334托幼用地),计容建筑面积17.83万平方米,项目总投资额逾70亿元。这是中建壹品在京首个地产收并购项目--大兴星光城。

  ③、2023年6月,中建三局+大兴城建联合体以总价10亿元摘得北京大兴新城西片区DX00-0407-0002地块,总建筑面积4.45万平方米--兴城之星。

「御璟星城元启」售楼处-2024北京「御璟星城元启」房价-楼盘详情(图3)

  ④、2023年8月,中建壹品竞得大兴区大兴新城核心区土地DX00-0101-053、DX00-0101-055地块(二类居住用地。土地面积:45954.22平方米,规划建筑面积:91908.44平方米。起始价:250000万元,规划建筑面积约9.19万平方米)。地价28.75亿元+现房销售面积18000平方米--案名:壹品兴创-颐和公馆。

  总之:中建壹品(中国建筑三居旗下的地产平台公司)属于重仓大兴(近些年在大兴狂拍7块地),西红门东区域是价格触顶,最后摇号中建壹品幸运摇中。案名御璟星城-元启(这个也说明是御璟星城的升级版)。

  ①、西红门橡树湾一期:2021年10月,华润置地+中铁68.5亿底价竞得大兴西红门6011、6014地块。

「御璟星城元启」售楼处-2024北京「御璟星城元启」房价-楼盘详情(图4)

  ③、西红门橡树湾二期:2022年9月:西红门镇DX04-0102-6013地块,由华润置地+中铁置业+兴创置地联合体以25亿底价竞得。

  如此多的地块,老底价成交也不是个事,后续必然会形成竞争,底价都没开发商买单了。

  ①、2022年7月,北京市轨道交通第三期建设规划(2022-2027年)环境影响评价进行第二次公示,确定了19号线日通过国家发改委的批复。

「御璟星城元启」售楼处-2024北京「御璟星城元启」房价-楼盘详情(图5)

「御璟星城元启」售楼处-2024北京「御璟星城元启」房价-楼盘详情(图6)

  ③、各种商业配套完善,2022年12月23日,大兴区西红门的山姆会员店开业亮相(与隔壁的荟聚、宜家家居形成了铁三角),西红门从此成为南城的商业配套高地(绝对的南城之光,好多住在南四环的丰台人跑这里逛街)。

  ①、橡树湾三期--文园:2023年5月6日,中铁+华润通过摇号形式摘得北京市大兴区西红门DX04-0102-6005地块,成交价37.26亿元+竞“现房销售”面积1.8万平方米,溢价率15%,楼面价约4.16万元 / 平方米。

「御璟星城元启」售楼处-2024北京「御璟星城元启」房价-楼盘详情(图7)

  ②、中建玖玥府:2023年7月25日,大兴西红门6006、6004地块,最终被中建玖合,成交价54.06亿+2.6万㎡现房销售面积,溢价率15%,住宅楼面价4.16万元/㎡。

  既然触顶了,那必然是要卖个高溢价,才能有钱赚,卷起来的西红门东,中建系来了,直接把之前躺赢的橡树湾打了一个侧翻。

  自从中建玖玥府开盘之后,西红门橡树湾文园的业绩就一路下滑(听说好几个月才销售了几套。央企再有实力也经不起这么耗着,领导们着急了,直接大降价活动,之前的销售价格的基础上直接打八折,还随便挑随便选。之前买了一二期的业主不干了,买了还没入住直接亏了一百多万。总价才五六百万。直接大闹售楼处。结论:草草收场,折扣取消)。

  这次中建壹品也是充分吸取了这边的经验,不仅产品升级,更多样化,会所、园林、楼栋铝板都布置上。计划6月开盘,现在推迟到了七月。看看升级后的元启,如何提升西红门东的品质(卷起来,开发商难了,但是购房人还是赚的)。

  并且中建壹品在丰台羊坊的花香壹号的大力度折扣活动,也还是草草收场。说明中建壹品也是承受着销售业绩的压力(2023年中建壹品以159.12亿元成为北京销售额第9名,2022年中建壹品在北京的销售额为187亿元,排名第8。去年买的地还比较多,大环境这种情况下,因此销售压力会比较大)。这次开盘必然折扣力度会很有诚意的,大家还是可以期待一下的。

  总之:西红门东板块从2021年开始的底价华润入局,再到中建壹品底价进来,后面又是华润底价来个西红门橡树湾二期(没有新人入场的西红门东板块,还有十多块地等着拍卖呢,再不采取措施,后续就是流拍的节奏了)。大招就是19号线二期+北京四中,皇城根小学的落地,其次周边西红门板块的商业配强。直接让这里成为了热点区域,2003年5月开始的拍地就是双触顶(价格和现房销售),摇号中标。华润的橡树湾三期,中建的玖玥府和马上要开盘的元启都是摇号中标。

  之前已经详细分析了板块、产业、交通、学区和生活配套,不展开了就说干货结论吧。

「御璟星城元启」售楼处-2024北京「御璟星城元启」房价-楼盘详情(图8)

  ①、板块:板块属于南四环与南五环之间,紧邻南五环,京开高速的东侧,大兴区西红门区域,属于大兴和丰台的交界。整个板块在开发之前已经拆迁完成,形成一片连片的空地区域(重新规划和设计,接下来就是一块块顺序拍地呗)。好处是未来有预期。缺点是现在是空地,缺少相应的配套(完全靠大饼,之前关键只有空地,其它利好的饼都没有--现在来了学校+轨交能看到的大饼,有点盼头了)。西红门的开发也是经历了早期的鸿坤时代,再到后来限竞房聚集。这两个阶段基本是围绕着西红门地铁站和京开高速西侧展开。现在进入了东开发阶段(西红门1号地组团集中开发阶段)。主打成为一个先规划,后建成的一个区域,主打居住区域。

  ②、板块周边:北侧是丰台西宫区域(凭借4号线号线的交叉换乘站)这两年也是新地热门区域(建发璟院、京投-森与天成、中海公元里等新盘聚集),新盘+政策性住房+高端别墅区域+少量老房子(商业配套还算方便)。板块的东侧是南苑机场(未来主要是绿化区域,虽然机场搬至大兴国际机场了,但是短期别指望大开发)。板块的西侧是这几年发展成熟的西红门区域(这里由于地铁4号线+南城商业配套的制高点+离市区近+次新聚集),成为大兴热门区域。都想来蹭蹭热度(隔壁的丰台羊坊区域、南四环的商业配套薄弱区等)。板块的南侧是之前规划的工业园区(这与首都定位功能不符,必然是很难发展,后来规划了星光影视基地。待19号线开通了,接着拍地呗)。

「御璟星城元启」售楼处-2024北京「御璟星城元启」房价-楼盘详情(图9)

  项目位于西红门东板块西南角。紧邻京开高速和南五环(虽然中间隔着绿化带,但是噪音还是很难避免的)。这个虽然交通方便了,但是交通近距带来的困扰大于便利的利好。这个也是好多人在乎的点(因此建议购买这个盘的人,专门去地块周边感受一下噪音因素)。

  这次地块在西南角(紧邻京开高速和南五环,这也是好多人在乎的点--位置还是不如橡树湾和中建玖玥府)

  交通:五环和京开高速还是很方便的,早晚高峰走京开高速还是非常堵车的,五环相对好一点。东侧开通的槐房西路还是方便不少。这里目前的轨道交通还不是很方便。行项目制4号线km。不能算地铁房。未来19号线是一个很大的利好(大概走行距离在1.3km左右。预计2030年左右屙刚开通,说20028年开通的有点忽悠人,听听就好了)。

「御璟星城元启」售楼处-2024北京「御璟星城元启」房价-楼盘详情(图10)

  ②、学校:这里除了小区配建各种幼儿园外,最大的利好就是黄城根小学(建设中)和北京四中的落地。隔壁的北京金融街润泽国际学校(私立校与买这里的大部分人没关系)。这一点是这里比较大的利好,吸引好多买家的一个比较重要的因素。

  ③、产业:这里基本没有产业,隔壁的星光城和南侧的工业园,与这里居住的大部分人没有关系。大家主要还是依靠便捷的公路交通和轨道交通前往市区各个产业区域。

「御璟星城元启」售楼处-2024北京「御璟星城元启」房价-楼盘详情(图11)

  ④、生活配套:这里的商业主要是依靠西红门西区配套商业(宜家家居购物中心、北京荟聚购物中心、山姆会员店三大巨头齐聚一起),或者未来前往一站地的新宫区域。板块的北侧规划了总建筑面积约14万平方米的元创大都会(中建三局开发建设)。近距离的医疗资源比较少,但是南侧地铁两站地就有北京大学第一医院大兴院区。以及南侧的广安门医院南院区和大兴区人民医院、北京市仁和医院、大兴区妇幼保健院等等。公园资源近距离也比较少,隔壁的公路隔离带,还是不特别适合遛弯。只能在小区遛遛了。向北有南苑森林湿地公园,向东有南海子公园算是有单规模。但是基本需要开车前往(距离还是稍微有点远)。

「御璟星城元启」售楼处-2024北京「御璟星城元启」房价-楼盘详情(图12)

  中建壹品:央企-中国建筑(世界500强第9名,全球最大的建筑房地产综合企业集团)下属的中建三局(中国建筑旗下排头兵,营业规模达到世界500强企业标准)旗下专业房地产投资开发运营平台,拥有房地产开发壹级资质(地产开发业务遍及粤港澳、成渝双城、京津冀、长三角等重点区域,开发项目超50个,总投资额逾1000亿元、土地储备超1200万方、总开发面积超1600万方)。在北京市场深耕三年。起品牌有“壹号系、公馆系、星城系、城系”四大产品系。”,这次元启是属于星城系。壹品兴创·御璟星城·元启是中建壹品在大兴的第7宗地。

  北京兴创:大兴地方国企,全产业链城市运营商,坚持深耕北京大兴市场。持续与中建壹品合作。

  2021年的北京学府公馆单日销售破119亿元,创海淀区域年度销冠;大兴·星光城勇夺大兴区住宅成交排行榜第一、北京市住宅成交排行榜第三;大兴壹品兴创· 御璟星城位列大兴区住宅成交排行榜第二、北京市住宅成交排行榜第四;丰台羊坊的中建壹品花香壹号前段时间的低价促销风波已过,但是背后的问题值得好好想想。

  开发商:华润+中铁,两大央企实力联袂,烂尾基本不可能,但是维权的事情还是持续会有的,毕竟采用的是七八年前的橡树湾的好多理念,有一些方面在内卷的市场环境中就有些过时了(前段时间的降价风波还在绕梁,未来板块的新盘多了,购房客户的对比心理,必然有各种小的维权事件时有发生)。

  中建玖合:隶属于中国建筑第二工程局,2021年更名,增加了注册资本金,扩大经营范围,开始发力地产市场,大手笔拿地,独立操盘(之前基本是合资参与的形式,)主打市场是北京和上海。在北京最出名的项目就是太阳宫的中建玖合府项目(2022年6月,中建玖合打败了7家房企,双触顶,最后摇号拿下太阳宫地块。两月定名,三月便拿到预售证,开始销售,开盘当天412套房源日光,金网签额超过80亿元),绝对是一次传奇式的项目--不是因为公司牛,实在是地块位置太好了,价格真香,中建玖合也很给力,实现了高周转。中间玖玥府也借鉴了不少玖合府的优势点。继续创造传奇吧。

  总之:御璟星城和御璟星城元启都是中建壹品和兴创置业联合开发(央企+地方扛把子国企),烂尾不可能,但是维权还是有可能的。橡树湾是华润主要操刀(华润+中铁两大央企联合操盘)开发了橡树湾三期-文园了,烂尾基本不会,维权会经常有(前段时间因为降价就进行了一次大的维权)。中建玖玥府是央企中国建筑旗下的中建玖合开发,烂尾基本不会,但是维权还是很有可能的(太阳宫的中建玖合府就维权了,这里大家就睁大眼睛盯着吧)。目前板块就是央企主要在操刀(华润+中建+地方国企配角)。

  地块的西南角是城市配建,因此整体地块属于缺角的方正地块。好在隔壁的配建楼层不高。

  总之:这里的地块都相对比较方正,除了御璟星城和中建玖玥府的西南侧有幼儿园和养老设施的配建外,橡树湾和元启都还是比较方正的(其中元启属于菱形地块,但是对楼栋排布和园林设计,相对影响比较小)。整个板块内的楼栋基本都采用的梅花桩的布局方式(优点就是布局的楼栋更多,每栋楼的采光都比较均匀。不足就是各个楼栋都会有一定的遮挡,小区东侧楼栋的是下午采光会受影响,小区西侧楼栋的是上午采光会受影响。小区中间楼栋的是上下午都会受一点影响)。

  小区的大门采用与小区一体化设计,按照“元”字的形状,演绎搭建了宽约60米的现代新中式入园大门,大门屋顶采用传统古典倾向一边的斜坡造型。整体还是比较大气的,与小区的景观和楼栋相得益彰。

  小区的园林设计师将被誉为中国“梵高”的艺术大师吴冠中先生的现代抽象派画作巧妙融入园林设计理念之中。东方新中式风格设计,整体实现了以“礼遇前场、下沉庭院、四方典藏园、自然游园、归家入户”构成的五进礼遇归家。

「御璟星城元启」售楼处-2024北京「御璟星城元启」房价-楼盘详情(图13)

  小区楼栋采用点状布局,在楼栋之间打造各个小型区域独特功能的景观,延续了御璟星城的整体设计风格(形成了下沉庭院、北园、南园、西北游园、儿童亲子乐园、儿童探险乐园六大独立空间,园林的六大独立空间,是在著名艺术家吴冠中360余幅画作中,选取的六幅作品并提炼出了六种意境,形成归园六境的整体布局)。总共3.5万平米的园林体系。通过一条600M的慢跑道连接起来,假山、亭台、流水、瀑布等打造出观水入园的效果。

「御璟星城元启」售楼处-2024北京「御璟星城元启」房价-楼盘详情(图14)

  下沉庭院(1000平米的下沉会所同时还是一个集社交、商业一体的社区盒子,将来可配置包括简餐/咖啡/便利店等等)。北园核心会客厅、南园会客区是主要的社交场所(以景会客,超大的水景面积和户外阅读室、茶室等的设计,是好友相聚最佳地)。西北游园是预留给个人,独自观鱼赏花,樱花漫步,可享受生活之余的自由。

  下沉会所:仿佛穿越至吴冠中笔下的《瀑》境,水景设计巧妙借用了画作中的透与不透、朦胧与灿烂交织的美学哲学,营造出一种梦幻与现实交映的独特氛围,让每位踏入者都能感受到心灵的洗礼与艺术的震撼。此地不仅是自然美景的延伸,亦是小区会所的所在,约1000平方米的奢雅空间,集社交、休闲、商业功能于一体,

「御璟星城元启」售楼处-2024北京「御璟星城元启」房价-楼盘详情(图15)

「御璟星城元启」售楼处-2024北京「御璟星城元启」房价-楼盘详情(图16)

  儿童乐园分为儿童亲子乐园,满足全龄儿童的不同需求(亲子乐园面向0-3岁的启蒙儿童,木桩、摇摇椅、植物认知、户外钓鱼、银杏林...侧重亲子互动)、儿童探险乐园(探险乐园面向3-6岁儿童,包括秋千乐园、林谷乐园、水动力装置;8-12岁大龄探险区域内配置了组合器械、高级滑滑梯、眺望台、秋千乐园,认知牌)。这一点做的还是到位的。

「御璟星城元启」售楼处-2024北京「御璟星城元启」房价-楼盘详情(图17)

  小区设有老年人的康养健身区,并配置成品器械、棋牌桌、疗养植物、安全扶手等,形成老少皆宜的活动场所。

  楼栋的设计基本现代的外立面沿袭御璟星城一期的现代风格,并在细节品质上实现了全面的迭代升级,采用大面积玻璃幕墙,不仅增强了室内的采光效果,更拓宽了景观视野,使得建筑整体呈现出轻盈透明、与自然环境和谐相融的视觉效果。选取高品质材料,辅以咖色的巧妙点缀,既强化了社区的识别度。是一种颜值与实用性的完美结合,它不仅塑造了项目独一无二的视觉标识,更深层次地传达了项目追求艺术生活化、生活艺术化的居住哲学,为现代都市人提供了一个既赏心悦目又温馨实用的理想居所。

「御璟星城元启」售楼处-2024北京「御璟星城元启」房价-楼盘详情(图18)

「御璟星城元启」售楼处-2024北京「御璟星城元启」房价-楼盘详情(图19)

  总之:小区的园林设计在之前御璟星城的基础上做了迭代升级,采用了吴冠中画作为故事的引子,立马逼格提升了一大截。其实最实惠的是会所,这个是板块的很大的加分项(目前只有玖玥府和启元有,相信卷起来,未来板块内再开新盘,没有会所都不好意思开,下场必然是和橡树湾三期一样不好卖,降价还被维权),其次水系景观+假山+连廊。更细致的儿童年龄段的划分考虑,这个还是非常值得点赞的。

  这里的园林景观,无论是从设计概念,还是借鉴的经验,已经属于御璟星城的升级版。必然是超越御璟星城的。其次与之前的西红门橡树湾的一、二、三期相比较,在园林景观的设计概念,超越,其次细节方面也是超越不好。最终要超越的是会所的配置。

  元启与玖玥府的园林相比较,大面上看基本属于不相上下。①、都有会所的配置。②、各自的设计故事和设计理念都是嘎嘎香。③、在细节的处理方面,一些配置的增加方面,必然是后来者会有后发优势。元启子啊细节考虑方面会比玖玥府好一些。

  总之:小区的大门、园林环境和楼栋设计理念、概念和最终的落地,必然是全面超越橡树湾和御璟星城。与隔壁的玖玥府基本能打个平手,在某些细节方面启元还是有一点后发优势的。

  这些户型都是市面目前的主流户型结构。与同板块的西红门橡树湾、御璟星城、玖玥府面积段分布基本一致。下面详细分析一下户型结构。

「御璟星城元启」售楼处-2024北京「御璟星城元启」房价-楼盘详情(图20)

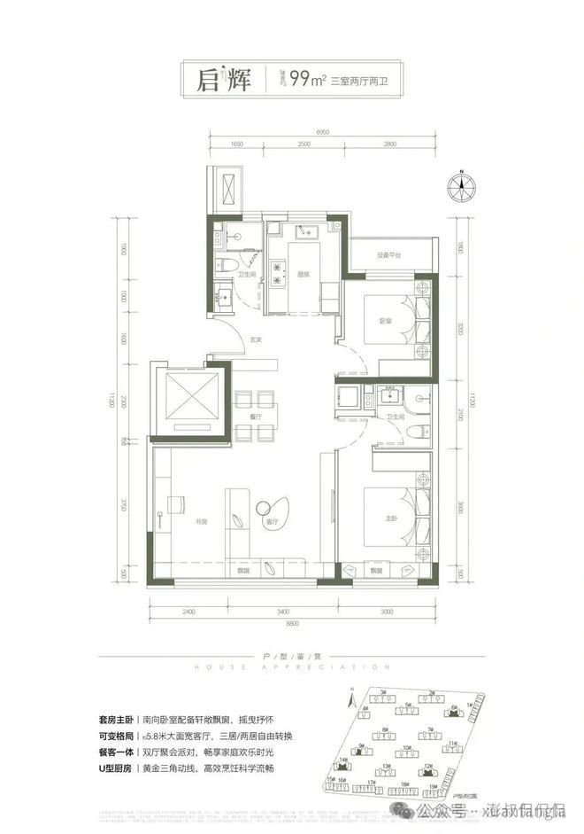
  特点:①、全明格局,边户厨房、卫生间都是南向(中间户型是向着中间的楼栋间的中间缝隙)。②、入户玄关处有背景墙,做了家政空间,隐私性增加了不少。③、北向一卧室+一功能间(可以打通使用)。卫生间实现了三分离,还是不错的。④、厨房(U型厨房)、餐厅和客厅一体化设计(动线安排比较合理),⑤、主卧和客厅都有飘窗赠送。主卧的门在最里面,隐私好了,到那时通透性差一些。

「御璟星城元启」售楼处-2024北京「御璟星城元启」房价-楼盘详情(图21)

  共同特点:①、都是79平米左右的,东西向户型。②、整体卧室、客厅、卫生间、厨房的布局相一致。

  区别:①、元启做到了U型厨房,玖玥府还是L型厨房。②、元启的主卧室门在最边上,隐私性好了,但是通透性差了。玖玥府的主卧门在餐厅与客厅中间。隐私性差一点,但是通透性好一些。③、元启南向尺寸增加了,进深也稍长一些。

「御璟星城元启」售楼处-2024北京「御璟星城元启」房价-楼盘详情(图22)

  橡树湾三期文园的77平米户型也是东西向。与元启的不同点是:①、这个户型小了两平米,直接变成了两居室,必然是比三居室的元启和玖玥府差一些。②、卫生间变成了暗卫,确实不如玖玥府和元启的明卫。U型厨房向北,比玖玥府型厨房优秀一点。

  总之:这三个楼盘的东西向户型,面积基本一致。户型格局,玖玥府和元启是三居室,橡树湾文圆石两居室。在整体格局和细节上,元启后来者居上,橡树湾两居室最差(毕竟少了一个功能室)。

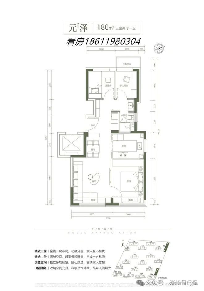
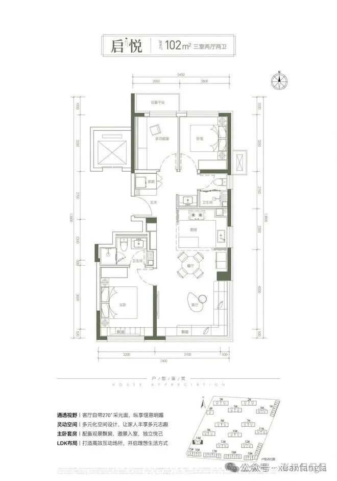
  元启88平米三居室位置在小区的最南侧(这里与南侧五环隔着一片绿化带,买这个户型,注意南侧的噪音问题)。南向两面宽,都赠送飘窗(面宽达到6.9米)。

  kaiyun体育全站 官网登录

  特点:①、主卧采用套间格局,大门与洗手间的门稍微有一点大家,问题不是很大。

  御璟星城85平米,比元启小了三平米。整体格局相一致。也是主卧采用套间格局。北向空间相差不大。

  不同之处:①、御璟星城的不足之处就是大门与卫生间的门打架比较厉害。②、餐厅、客厅和厨房一体化设计,御璟星城的厨房实现了U型,比元启L型更大,到那时元启的通透性更好一些。御璟星城的客厅实现了270度大转角的窗户+赠送飘窗,这个还是比元启豪不少。

  总之:这个面积段互相相差不大,御璟星城的主卧大门也和卫生间门打架。但是好多还是会给御璟星城的大窗户投一票的。

「御璟星城元启」售楼处-2024北京「御璟星城元启」房价-楼盘详情(图23)

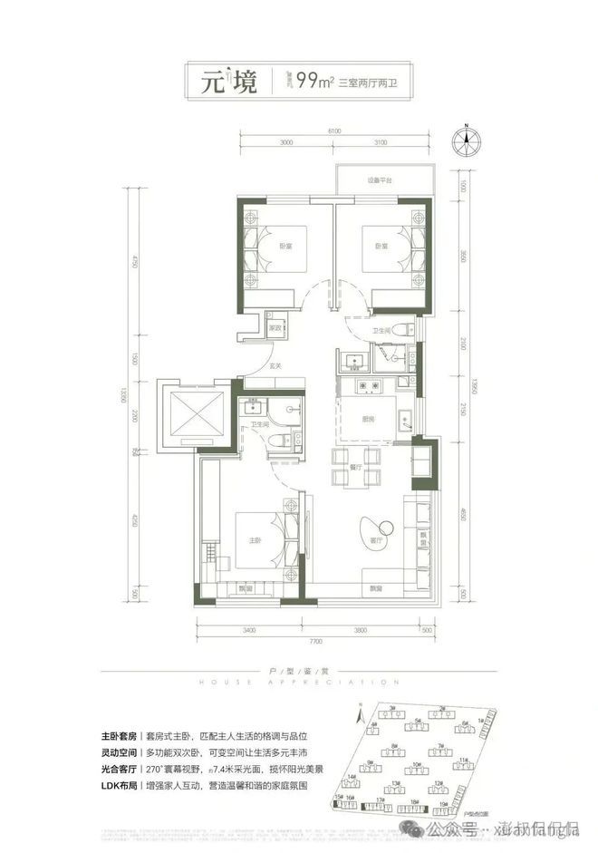
  这个户型是南向两面宽,位于小区的最南侧边户。这个户型基本就是上面88平米的放大版。

  ②、88平米元启是中间天井的采光。99平米厨房和客卫实现了东向或者西向的窗户采光。

「御璟星城元启」售楼处-2024北京「御璟星城元启」房价-楼盘详情(图24)

「御璟星城元启」售楼处-2024北京「御璟星城元启」房价-楼盘详情(图25)

  特点:①、入户玄关处,左侧是三分离的卫生间(这个疫情期间最实用),大门与北向卧室稍微错开了一点。

  ②、客厅(可以与南向的功能间打通使用,也可以隔离分开使用)、餐厅和厨房(U型厨房)一体化设计。

  ③、主卧采用套间格局。餐厅旁边有独立的家政空间(相对比较小,主要是放置洗衣机)。

「御璟星城元启」售楼处-2024北京「御璟星城元启」房价-楼盘详情(图26)

「御璟星城元启」售楼处-2024北京「御璟星城元启」房价-楼盘详情(图27)

  这个是南向两面宽,客厅是东向或者西向。南向两间卧室。北向一间卧室。客厅、餐厅和厨房一体化设计。这个户型最大的亮点就是西向的大窗户。有独立的家政空间。这个户型不能算主流户型,一开门就是正对着大窗户,绝对透亮。

「御璟星城元启」售楼处-2024北京「御璟星城元启」房价-楼盘详情(图28)

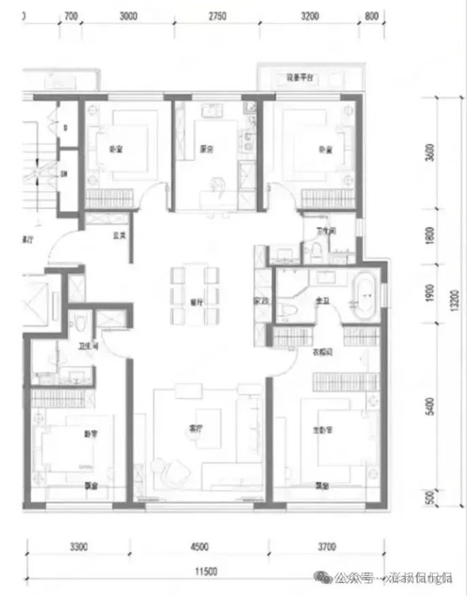
  南向三面宽三居室,这个户型和元启的99平米户型大致布局基本一致。北侧都有黑科技的设备平台赠送。不同之处就是:①、客卫的位置进行了更换,御璟星城的客卫在西侧,元启的客卫在玄关处。经历过疫情的我们感觉元启的位置更优一些。②、元启南向次卧和客厅做了打通处理。这个和紫金书院的大户型有类似处理手法。

  总之:99平米同面积段户型相比较。南向三面宽必然是大于南向两面宽的户型。其次有家政间的必然优于没有家政间的。主流户型必然是大于异形户型。其次元启的得房率相对高于玖玥府一些。并且元启都是一梯两户(玖玥府部分高层是两梯两户)。

  基本排序是:元启南向三面宽御璟星城元启南向两面宽玖玥府橡树湾三期

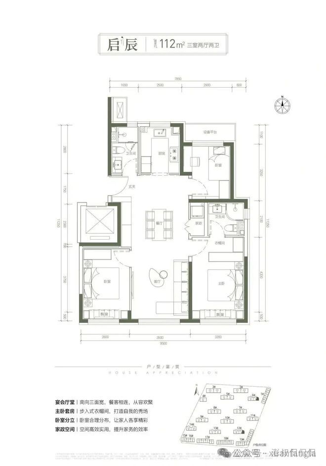
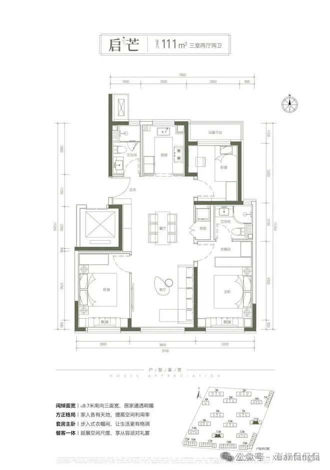
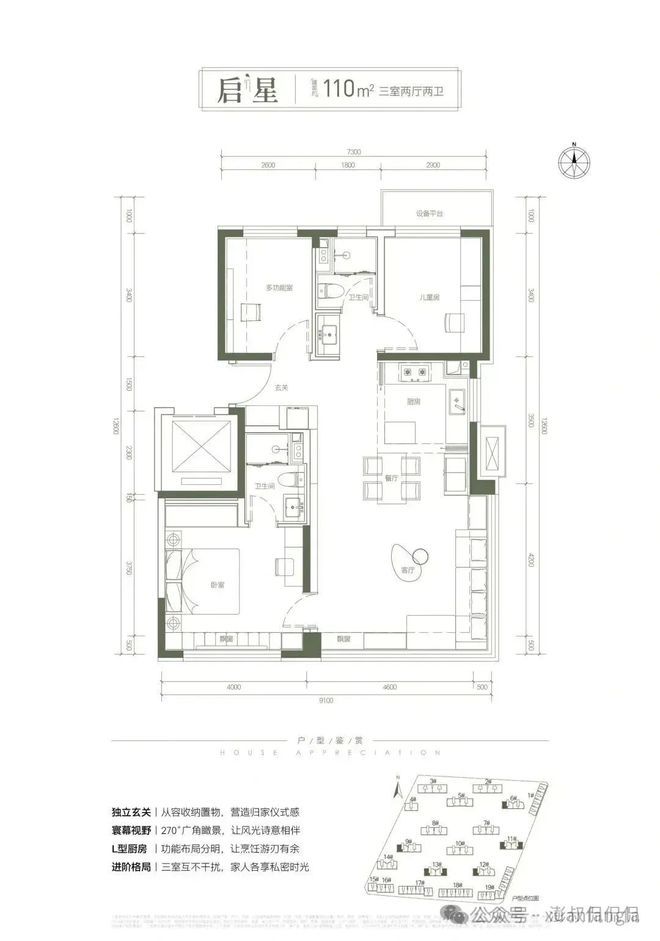
  这个户型有四个。其中110平米有两个(其中一个属于异形,长得有点像小猪佩奇),111和112平米各一个。

「御璟星城元启」售楼处-2024北京「御璟星城元启」房价-楼盘详情(图29)

  110平米的三居室内。这个户型是放大版的南向两面宽三居室(南向面宽9.1米)。这个基本是上面102平米的放大版和加宽版。

  ③、主卧是套间格局,但是主卧的门在最南侧,通风性差一些,但是隐私性好一些。

「御璟星城元启」售楼处-2024北京「御璟星城元启」房价-楼盘详情(图30)

  这个户型在小区的东南角,绝对的变异户型(绝对少数,一共只有9套这个户型),长相真的很像小猪佩奇。

  特点:①、南向两面宽,南侧户型还是比较方正,主卧套间格局(空间比价大,可以放置转角衣柜),客厅270度大转角窗户(赠送飘窗),并且与餐厅和厨房一体化设计,并采用开放式厨房。

「御璟星城元启」售楼处-2024北京「御璟星城元启」房价-楼盘详情(图31)

  这个户型还是南向三面宽的的三居室。这个户型基本是元启三面宽三居室的99平米的放大版。

  不同之处:①、玄关入户北侧客卫(但是客卫没有三分离),南侧有储物柜子。但是不足之处就是大门正对着北侧的卧室。

「御璟星城元启」售楼处-2024北京「御璟星城元启」房价-楼盘详情(图32)

  这个户型基本是上面111平米户型的放大版,基本一致(客卫没有三分离、大门正对北向客卫这些不足都保持)。

「御璟星城元启」售楼处-2024北京「御璟星城元启」房价-楼盘详情(图33)

  不同之处:①、玖玥府客厅达到5.6米,元启的客厅面宽只有5.1米。并且他们都有飘窗赠送。②、玖玥府的储物空间更充足。因此启元的110平米南向两面宽是不如玖玥府的这个户型的。

「御璟星城元启」售楼处-2024北京「御璟星城元启」房价-楼盘详情(图34)

「御璟星城元启」售楼处-2024北京「御璟星城元启」房价-楼盘详情(图35)

  与元启同户型的不同之处是:①、客卫从玄关处挪到了东侧,并且实现了三分离。这样带来的不足就是大门正对着客卫大门(需要加装一个屏风)。

  总之:虽然都是110平米左右,但是有南向两面宽和南向三面宽之分(好多人会说必然是三面宽大于两面宽,但是也有人喜欢南向两面宽的大宽客厅)。因此这里的意见仅仅作为参考。

「御璟星城元启」售楼处-2024北京「御璟星城元启」房价-楼盘详情(图36)

  这个户型是典型的四叶草户型,全明格局,四个卧室居于四个角,隐私性比较好。

  不足之处就是大门正对着这客卫(加屏风)。各种配置都有了(家政间、主卧套间,步进式衣柜),赠送飘窗+北向设备间等。

「御璟星城元启」售楼处-2024北京「御璟星城元启」房价-楼盘详情(图37)

「御璟星城元启」售楼处-2024北京「御璟星城元启」房价-楼盘详情(图38)

  ②、橡树湾北向两卧室紧邻,隐私性差一些,但是优势就是这个功能间可以打通使用。

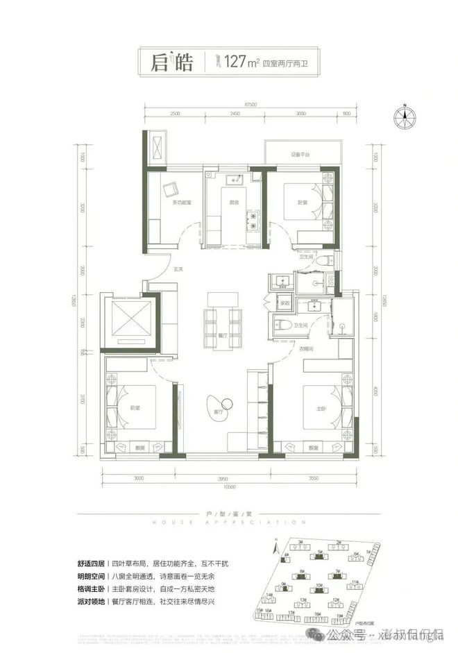
  总之:127平米左右的这个面积段都是南向三面宽的四居室,空间布局方面稍微有一点差异,但是整体都是目前市面主流户型。

「御璟星城元启」售楼处-2024北京「御璟星城元启」房价-楼盘详情(图39)

  特点:①、这个户型是以客厅为中心的多变户型。客厅不仅有270都大转角窗户,而且南向书房可以与客厅打通形成一个大的客厅空间。厨房采用开放式,更是加大了客厅空间的视觉效果。(客厅宽度达到6.9米)

「御璟星城元启」售楼处-2024北京「御璟星城元启」房价-楼盘详情(图40)

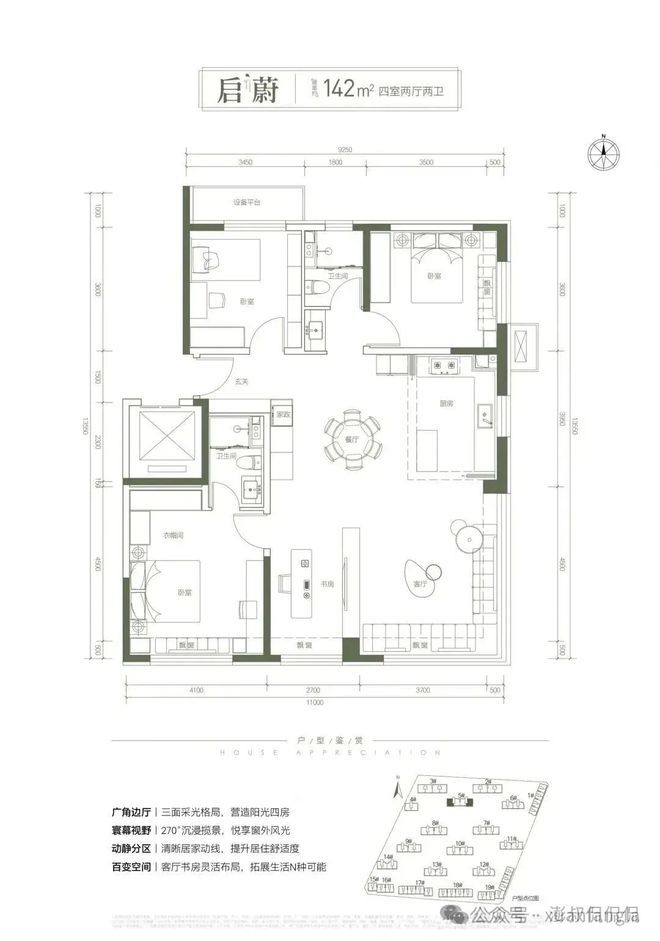
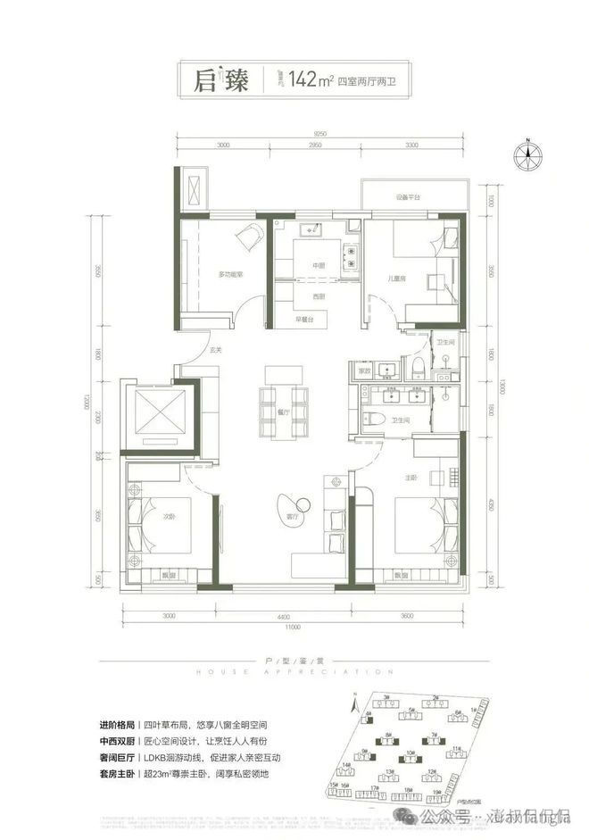
  这个户型是典型的127平米四叶草户型的放大版,全明格局。主要区别是:①、主要是客厅面宽更大了(面宽从3.9米扩大到了4.4米)。②、主卧空间也大了(主卧卫生间双洗手池),并且主卧实现了270度小转角窗户+飘窗。③、厨房实现了中西厨分离。④、不足之处就是南向次卧距离卫生间有点远。动线平米属于普宅线,也是作为好多家庭选择的改善户型。

「御璟星城元启」售楼处-2024北京「御璟星城元启」房价-楼盘详情(图41)

「御璟星城元启」售楼处-2024北京「御璟星城元启」房价-楼盘详情(图42)

  ①、入户玄关做了转角设计,这个还是非常优的(不仅隐私好,风水也不错,也更符合日常使用习惯)。

  总之:这三个楼盘相比较,元启的户型更方正一些,其次是元启采用了来同面积段两种户型。满足不同人的需求。客厅为中心的,还有就是家庭成员多的四叶草户型。橡树湾和御璟星城都是典型四叶草户型。同面积段排序:元启两个户型相差不大,看个人喜好选择吧。御璟星城靠玄关和家政储物空间稍微比橡树湾强那么一丢丢。

「御璟星城元启」售楼处-2024北京「御璟星城元启」房价-楼盘详情(图43)

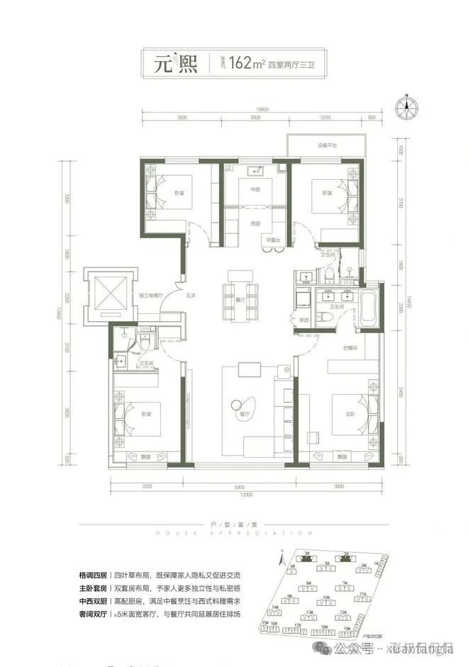
  特点:①、南向两卧室都实现了套间格局。②、主卧还待双洗手池和浴缸。③、家政空间也更大了。④、入户玄关正对着餐桌。中西厨分离。这个户型基本算是四叶草里面的完美户型。

「御璟星城元启」售楼处-2024北京「御璟星城元启」房价-楼盘详情(图44)

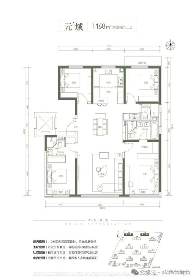
  168平米是162平米的放大版。主要区别是:①、边户户型更方正。其次主卧卫生间、客卫的采光更好了。其次是北向卧室更大了。并且这两个户型都属于低层洋房楼栋(2号楼和3号楼)。一梯两户,得房率也比较高。

「御璟星城元启」售楼处-2024北京「御璟星城元启」房价-楼盘详情(图45)

  特点:①、这个户型从入户玄关做了转角的处理。②、主卧的衣帽空间更大了。③、面宽11.5米。元启12米(毕竟元启大了14平米)。③、玖玥府的家政空间比元启的稍微大一点。

「御璟星城元启」售楼处-2024北京「御璟星城元启」房价-楼盘详情(图46)

  这个户型的特点是客厅达到了6米宽,并且月餐厅等面宽,整个客厅空间大了不少。其它方面与上述两个户型相差不是很大(主卧元启3.8米,玖玥府3.7米,橡树湾3.6米)。入户也做了转角的玄关处理。其它方面相差不是很大。

  总之:橡树湾三期、玖玥府和元启在这个面积段户型,都属于各自小区的楼王户型。除了元启未做大的玄关处理,家政空间明显元启小一些,玖玥府的稍微大一些。元启和玖玥府都做了中西厨的分离。橡树湾未做这些细节的考虑。但是在大客厅方面,橡树湾更胜一筹(整体面宽方面:橡树湾三期12.8米,元启12米,玖玥府11.5米--毕竟玖玥府小了十多平米)。

  这里的装修标准是在之前御璟星城的基础上,做了一定的升级。①、延续了之前的中央空调和全屋智能化系统。基本上是实现了全屋的精装智能满配。②、做了完备的收纳空间装修。

  基本上实现了拎包入住(通过我们购买返上几万的购房补贴,基本家具的钱也有了)

「御璟星城元启」售楼处-2024北京「御璟星城元启」房价-楼盘详情(图47)

「御璟星城元启」售楼处-2024北京「御璟星城元启」房价-楼盘详情(图48)

  整个板块内基本都是全精装修交付。装修意味着出钱。在目前内卷的大环境下,卷装修成为了一个必选项。因此大家看好装标,六号照片。后期等着验收吧。不行就让维修。反正前段时间的后沙峪-和光瑞府交房被维权了(结果就是华润+保利两大央企都的交罚款)。

  总之:元启的装修标准基本是之前御璟星城的升级版。目前的主要对标对手就是玖玥府了。这个比橡树湾子好多地方做的还是优秀不少(要是橡树湾三期降价后,那这些都是浮云,必然是建议去买价格低的,那也是很真的真实惠)。

  整个板块属于南四环与南五环之间,紧邻南五环。属于大兴和丰台的交界处,属于大兴区域。板块内部是被整体拆迁形成一大片空地区域。板块的东侧是隔着大兴星光影视城的丰台的南苑机场区域。北侧是丰台新宫区域(聚集安置房+政策兴住房+商品房建发璟院、森与天成、中海公元里等新房项目的区域,这里还有豪宅社区)。西侧是西红门区域,这里属于十年前的新房聚集区。现在各种配套基本成熟的一个刚需聚集区,也有极少量别墅。板块的南侧是之前规划的大兴工业园区,后来的疏解非首都功能,这里虽然有一些产业,当时后续就很难再有新的大规模的落地了。

  这里近期的利好就是学校的落地(北京四中+皇城根小学校区),17号线二期的建设和开通。整个西红门东板块的建设完成,形成一个全新的居住板块。

  因此这里属于典型的环线位置不是那么偏远的刚需板块。饼已经画完了,后续就等着落地。

  项目的销售指导价:6.6万/平米。楼面价:4.15万元(按照之前在中建花香壹号的操作逻辑--楼面价4W,最低4.9万都喊出来了。中建最低价5.2W就敢卖了。但是在西门这种可能性比较小)。

「御璟星城元启」售楼处-2024北京「御璟星城元启」房价-楼盘详情(图49)

  最近也是搞特价房了,单价:6.2W(3层108平米,总价680万左右)。最近业主群里在传这里签了一套17号楼的108平米,单价5.7万。

「御璟星城元启」售楼处-2024北京「御璟星城元启」房价-楼盘详情(图50)

  玖玥府虽然去化相对还行,但是目前的市场环境,现在也愁卖了,各种特价不断。未来再来元启的竞争,必然会分流一部分。就看谁的价格更合适。这两个同价格段,玖玥府的位置更优一些。

  现在网签价:平均6.38万/平米(6.1-6.4W之间)。户型面积段:(79平洋房东西向三居、98平洋房三居、99平三居、108/109平三居、134平四居、154-170平洋房四居)。

  前段时间的特价房,降到最低5.4W左右(并且还有车位优惠卷赠送,还可以自己选楼层。直接被橡树湾一期和二期业主维权,开发商号称自己只是拿几套特价房来吸引一波流量。最后只能收回折扣)。每平米立马减了一万多。这个力度还是比较有诚意的。这个价格还是值得买的。这个也是这里的最最低价。

  总之:这个盘现在基本剩下一二层的尾盘状态,销售人员也是全力以赴切换到元启盘的销售状态了。

「御璟星城元启」售楼处-2024北京「御璟星城元启」房价-楼盘详情(图51)

  鸿坤林语墅价格约6.9万/㎡(这里属于西红门西板块,相对比较成熟,离地铁四号线更近一些);

  旁边刚交付的首开龙湖熙悦宸著价格约6.6万/平米(基本没有什么成交,位置确实不如这些新盘好一点)。

  开云体育 网页版入口

  总之:这里二手房距离四号线西红门站更近一些,配套也更加成熟。能与东侧的新盘PK的2010年之后的鸿坤系列小区,单价也基本在5W左右。并且东侧的新盘明显户型,品质更优一些。但是还是需要等上三年后才能入住。因此现在的6.4W左右的网签价,就显的贵了那么一些(毕竟地铁+学校的配套还是需要时间等待,但是现在的价格基本算是透支了这些利好)。但是前段时间橡树湾三期的5.4W,就出现了一二手真倒挂,还是非常值得买的。

  ①、这里属于整个板块拆迁完后,全新规划和建设的纯居住区域。早期的三块地基本都是华润带着中铁和中建壹品带着兴创底价拿下。后面还有多块地。必须加利好。要不然后续就是流拍的节奏。19号线二期的方案公布,并且三期规划中获批。引进了北京四中+皇城根小学的量大利好,直接让这里的拍地起飞,后续就是双触顶摇号竞拍的节奏(目前:御璟星城属于尾盘阶段,橡树湾一二期基本清盘,橡树湾三期文园正在艰难的销售中。玖玥府的到来,成为现在片区最值得买的盘,但是大环境导致其销售业不是很理想,各种特价房源不断。马上中建壹品联手兴创置业打造的御璟星城升级版元启,即将开盘--之前预计6月开盘,现在推迟到7月了)。

  ②、这个大的板块产业基本靠交通拉着产业区域(19号线二期的饼)。挂牌名校的加持,也是让这里热了起来。商业配套有待落实。医疗资源共享其它区域。公园资源只能往新宫走走(未来板块内部还是会有一定的溜达氛围的)。

  ③、整个板块属于大兴与丰台的交界区域,五环内,京开高速的东侧,典型的刚需好刚改聚集区。都是央企+国企开发商。因此烂尾基本不可能,但是减配维权,大家还是做好心理准备。地块相对都比较方正。容积率也基本一致在2.5左右。各个地块的规模也相差不大。只是这几块地的位置在板块内还是有一些差异的。

  ④、玖玥府、橡树湾相对比元启的位置好一些(元启在板块内的最西南侧,紧邻京开高速和五环路,噪音问题不容忽视)。小区园林方面,玖玥府和元启两个故事讲的确实比橡树湾三期的漂亮。并且玖玥府配置了会所,直接把小区的逼格提升了一个档次。自从玖玥府开盘后,橡树湾三期就没卖出去几套(着急了,搞特价,引来一二期的维权--华润+中铁现在是真难受啊)。元启就对标玖玥府,也加上了会所,并且在园林方面更有诗意了。大有超越之意(就看后续是不是可以不折不扣的落地了)。

  ⑤、板块的户型相比较,元启基本是御璟星城的升级版。各个面积段也有多种类型的户型。在设计过程中尽可能的避开了直接竞争对手玖玥府不足。整体户型设计上,元启在一些细节方面还是超越了玖玥府(就是93分与95分的区别)。特别是南向三面宽的三居室,这个绝对是板块不错的户型。特别是在赠送上不仅有南侧的飘窗赠送,北侧也增加了设备平台(你懂得)。在大户型方面基本不分伯仲(玄关的处理上元启稍微差了一点)。装修方面也是御璟星城的升级版,必然是为了好卖,卷出新高度。

  ⑥、最关的价格方面,这里的新盘网签价之前基本在6.4W左右。自从上次橡树湾三期文园,把折扣价最低打到了5.4W之后(虽然没卖出去,到那时口号喊出去了。大家默认这是开发商能承受的最低价),大家目前期望着西红门东的最盘就降价到5.4W。最近不高特价都不好卖,号称玖玥府最近签了一套3层5.7W的特价房。中建壹品北京公司的销售压力也是很大(从前段时间开盘的丰台羊坊花香壹号,上来就把价格拉到最低,直接让约谈了,看来为了回款是真着急了)。相信这次推迟的开盘(预计6月开盘,现在推迟到7月了,也许是没准备好吧),也还是想这各种办法大卖一下(开盘价格的折扣必然会比隔壁的玖玥府更优竞争力才行)。这里属于同期三个盘在售(三兄弟打架,享受利好的事买房人)。

  如有问题欢迎来电咨询,可预约销售人员,专业一对一热情服务,让您用专业眼光去买房。

  特别声明:以上内容(如有图片或视频亦包括在内)为自媒体平台“网易号”用户上传并发布,本平台仅提供信息存储服务。

  网传某地红十字会3个月只收到800元捐款,官方数据显示:编制共5人,工资等支出89万

  年底前上海2条轨交将通车,机场联络线万首付上车!西海岸四盘房价乱战:安居房要慌了!

  年底前上海2条轨交将通车,机场联络线万首付上车!西海岸四盘房价乱战:安居房要慌了!

  爸爸带娃一直在看手机二宝“走丢了”也不知道 妈妈:以后可不敢让娃爸带娃了