Kaiyun·体育(中国)官方网站-开云成就平凡梦想

森与天成:北京丰台区(森与天成)网站欢迎您-售楼处kaiyun体育网页版-开云Kaiyun·体育(中国)官方登录入口
专注【中高档】餐饮家具定制
当前位置: 主页 > 企业动态 > 媒体报道
森与天成:北京丰台区(森与天成)网站欢迎您-售楼处kaiyun体育网页版
来源: 网络 / 发布时间:2024-07-24 21:08:38 / 浏览次数:

  询服务热线)开发商销售团队全程营销策划,项目信息真实有效。案场内销售专业热情一对一服务,为您详细介绍最新优惠价格、在售房源、楼层朝向、户型面积、周边配套,让您用专业眼光买房。

森与天成:北京丰台区(森与天成)网站欢迎您-售楼处kaiyun体育网页版(图1)

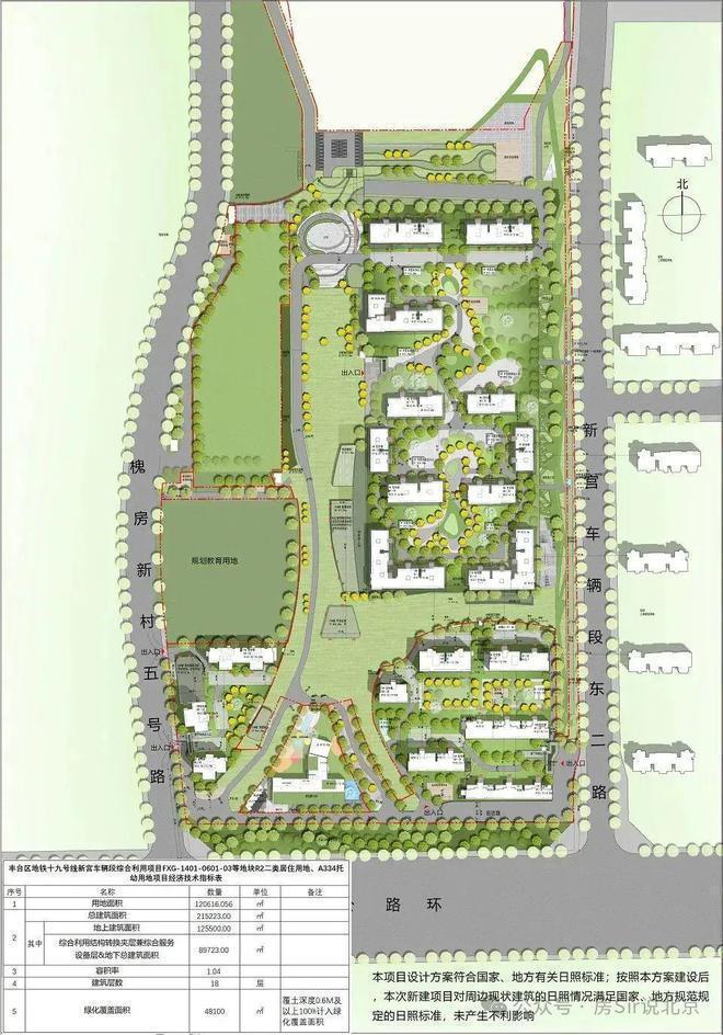
  丰台区地铁十九号线新宫车辆段综合利用项目FXG-1401-0601-03等地块由京投发展底价竞得,成交金额为50亿元,成交楼面价约4.07万元/平方米,建成后销售指导价为8.3万元/平方米。

  地块性质为R2二类居住用地、A334托幼用地,总占地面积约120616平方米。

  地块为新宫车辆段上盖项目,分为落地区、坡道用地落地区及上盖区,地上建控规模约125500平方米,限高 60 米,容积率1.04。

  居住用地内,京投需建3000平方米机构养老设施一处、1000平方米社区养老驿站一处、1100 平方米社区综合服务设施一处,以及幼儿园,建成后无偿移交相关部门。

森与天成:北京丰台区(森与天成)网站欢迎您-售楼处kaiyun体育网页版(图2)

  新宫板块的西边是新发地,在京开高速的西侧,这是北京最大的农副产品批发市场。东边是南苑湿地公园,未来据说要达到2.5个奥森那么大。

森与天成:北京丰台区(森与天成)网站欢迎您-售楼处kaiyun体育网页版(图3)

  周边的住宅板块主要是草桥、西红门、高米店、大红门,其中草桥和高米店无新房项目,而四环内的大红门有中海和瑞叁號院和永定金茂府两个改善盘,但卖的差不多了。

  对比最多的是西红门东,那边目前有华润橡树湾、中建三局御璟星城、中建二局玖玥府这三个在售项目,体量较大,同样是五环内,但因为是大兴区,所以单价便宜,6开头。

  对于这两个板块和项目的对比,房Sir和团队成员调研多次,甚至进行了辩论争吵,很是熟悉,想打听细节的粉丝私信找我吧,绝对能帮助到你,微信:jwbei2。

森与天成:北京丰台区(森与天成)网站欢迎您-售楼处kaiyun体育网页版(图4)

  森与天成售楼处电话:【官网】项目西侧是有一片绿地,未来有可能成为海子公园的一部分。东侧是新宫家园北区,2009年的回迁安置房项目,才十年出头,但看起来显然像是至少二十年房龄的老破小。森与天成东北角,是正商明苑小区,共产房,2021年交付的,算是周边最新的交付楼盘了。

  北京丰台森与天成售楼处电线米左右,是万达广场以及去年比较火的建发璟院项目。南侧是翠海明苑,有商品房也有二类经适房,于2005年建成。

  再往南是中粮和天恒携手开发的天悦壹号,可以算是豪华改善盘,大部分房源是四居,妥妥一千多万起步,门槛非常高。2018年开盘时定价就已经是8万,印象中首期开盘竟然卖得还不错,当初真是地产黄金时代啊。现如今回头看,五年前8万买的业主们,可以说是买在了山顶,站岗多年。(从天悦壹号的身上,其实可以分析出很多区域板块的情况,不展开了,感兴趣的粉丝私信:jwbei2)

森与天成:北京丰台区(森与天成)网站欢迎您-售楼处kaiyun体育网页版(图5)

  交通配套方面,森与天成守着新宫地铁站,是4号线号线换乘大站,对地铁族很友好。这两条线都是南北主框架级线路,其中换乘站不少,到大部分目的地基本倒一次也就能到了。而且说句接地气,这19号线目前是始发站,意味着您可以有个座,很不错。

  有些森与天成的销售会说:“这个19号线大站快线有北延和南延的规划,但北延会更优先,南延得等”。话虽委婉,但意图明显,翻译过来就是“西红门东一时半会没地铁,没谱”。

  还不是因为西红门东是最大竞品嘛。讲真,竞品项目相互打击很正常,京投算是还比较收敛含蓄的。话说回来,售楼处销售的话真不能全信,想打听真实客观情况的粉丝,私信找我。

  公路方面,森与天成上四环确实还比较方便,沿着项目东侧的槐房西路往北走到公益西桥就齐活了,不到2公里就能上四环。您如果沿着槐房西路往南走,可以上五环,但估计大部分人不会这么通勤。

森与天成:北京丰台区(森与天成)网站欢迎您-售楼处kaiyun体育网页版(图6)

  森与天成售楼处电线公里内,有万达、大悦春风里两大商业,日常所需完全绰绰有余。海子公园、槐新公园、南苑森林湿地公园,分别在项目的西北东三侧,给森与天成来了一个大包围,这也是项目所谓“在公园里”的主要依据。

  北京丰台售楼处电话:【官网】项目北侧公益西桥附近,有集美家居,后续买家具、家电比较方便。BHG华联这里,房Sir印象中还有一个大迪卡侬。还有丰台体育场和京丰南篮球羽毛球馆,对经常喜欢体育锻炼的人群很友好,都在公益西桥。

  再来说说京开高速西边的配套,首先是天坛医院,从天坛搬过来的,而且这不是分院或者XX院区,就是纯粹的主院区,北京知名大三甲,综合实力经常可以排进全国前二十,尤其是神内神外,稳居全国第一。其次,西红门商圈的作为南城第一商圈,自然要说说,这里有宜家、荟聚、山姆、新光界,从集中规模来说,可以算得上是北京第一大了,房Sir每次去都会逛懵,太大了。虽然4小时免费停车,但是找到自己的车停在了哪里也得花点时间,果然,大也有大的缺点,哈哈。

森与天成:北京丰台区(森与天成)网站欢迎您-售楼处kaiyun体育网页版(图7)

森与天成:北京丰台区(森与天成)网站欢迎您-售楼处kaiyun体育网页版(图8)

  76㎡两居,四环+南北通透,对于一个两居户型来说,这两点就已经足够优秀,很是具备稀缺性。

  大面宽,短进深,通透性真是非常不错了。俩卧室都是朝南的,采光非常好。北向没赠送,但是南向送了俩阳台和一个飘窗,可以了。

  L型厨房,并且冰箱能放在厨房内,也不错。真别觉得这是废话,很多小两居的厨房真放不下冰箱,都得放客厅,只是很多人注意不到,交房了才发现。厨房是正常开窗,不是在凹槽里的那种,通风没问题。

  卫生间起码做到了干湿分离,而且洗手池台盆外置,这种设计在入住后的实际利用率更高,生活经验丰富的粉丝应该能理解。

  缺点:餐厅得挨着北边窗户放,如果真按照户型图放的话,堵在路中间,很不方便。咱毕竟是小户型,面宽没那么足。也就是说,餐桌会正对着入户门,或许有的人会在意。

森与天成:北京丰台区(森与天成)网站欢迎您-售楼处kaiyun体育网页版(图9)

  89㎡三室两厅三卫,森与天成的入门三居。结构很普通,标准两面宽的版本,这结构真是没啥好说的。

森与天成:北京丰台区(森与天成)网站欢迎您-售楼处kaiyun体育网页版(图10)

  109㎡三室两厅两卫,南北户型,由于是南向两面宽的结构,通透性其实并不算好。但边户的话,是可以实现客厅转角大飘窗和270°采光的,弥补了通风和采光的问题,一点不耽误。

  这户型的三个卧室面积很均衡,两间北向次卧的面积都不算小,可以真正做一个卧室。这也不是废话,有的户型说是三居,但其实有的次卧很小,导致北向房间只能做榻榻米或者放单人床,这种情况现在并不少见。可惜大部分购房者自己是无法看出这些细节的,这也是咱房Sir说北京存在的意义,发现细节,提醒避坑,更多的话可以私下问我:jwbei2。

森与天成:北京丰台区(森与天成)网站欢迎您-售楼处kaiyun体育网页版(图11)

  网上确实有人说这148户型有多牛多好,但房Sir说句实话,只要是您对比过四五个盘,看过一些项目,哪怕是普通购房者也不会觉得这是所谓“神户型”,瞎忽悠真是挺没劲的。

  要我说啊,就是一普通南北三居,南向双套房是个优势,比二手老房子户型肯定强一些,但其结构相比周边新盘并无优势,只能靠地段环线去突出优势了。

  从三卫这个角度来说,148户型考虑的是改善群体,那北向卧室面积确实也还可以。从“实用能住人”的角度来说,比只能用作书房的某些神户型的次卧强。

森与天成:北京丰台区(森与天成)网站欢迎您-售楼处kaiyun体育网页版(图12)

  目前对外发布的资料还真是不算太多,户型位置、房源分布的情况可以找我要资料。

  与京投上一个项目东坝北熙区一样,也是分为上盖区和落地区两部分,目前在售的是上盖区部分,容积率低于1,真正低密度。

森与天成:北京丰台区(森与天成)网站欢迎您-售楼处kaiyun体育网页版(图13)

  kaiyun体育 官方网站入口

森与天成:北京丰台区(森与天成)网站欢迎您-售楼处kaiyun体育网页版(图14)

  kaiyun体育 官方网站入口

  北京“森与天成”售楼处地址:(免费咨询服务热线)开发商销售团队全程营销策划,项目信息真实有效。案场内销售专业热情一对一服务,为您详细介绍最新优惠价格、在售房源、楼层朝向、户型面积、周边配套,让您用专业眼光买房。